LOOKING ON EVERYTHING ?
EXPLORE ON EVERYTHING

เปิดกว้าง และมีความหมายต่อผู้คน โดย PHTAA
ในตอนนี้เราขอนําเสนอผลงานออกแบบสถาปัตยกรรมที่แปลกและแตกต่างจากตอนที่ผ่านมา คือเป็น โครงการสถาปัตยกรรมที่เกี่ยวข้องกับกิจกรรมของชุมชนทางศาสนาคริสต์ แต่ในขณะเดียวกันก็เป็น พื้นที่ที่ถูกใช้งานในรูปแบบอันหลากหลาย อย่างพื้นที่ให้เช่าเชิงพาณิชย์ต่างๆ อีกด้วย โครงการแห่งนี้ มีชื่อว่า The Baptist
ที่น่าสนใจก็คือ โครงการแห่งนี้ได้รับการปรับปรุงตัวอาคารให้มีความทันสมัยและแปลกตากว่าอาคาร ทางศาสนาคริสต์ที่เคยพบเห็นทั่วไปในบ้านเรา จากการทํางานของสํานักงานสถาปนิกชาวไทยอย่าง PHTAA กลุ่มสถาปนิกนักออกแบบรุ่นใหม่ ผู้มีความเชื่อมั่นอย่างแรงกล้าว่า สถาปัตยกรรมคือสะพานที่เชื่อมโยงวัฒนธรรมอันหลากหลายเข้าไว้ด้วยกัน โดย พลวิทย์ รัตนธเนศวิไล หนึ่งในสถาปนิกแห่ง PHTAA กล่าวถึงความเป็นมาของการปรับปรุงโครงการ The Baptist ว่า
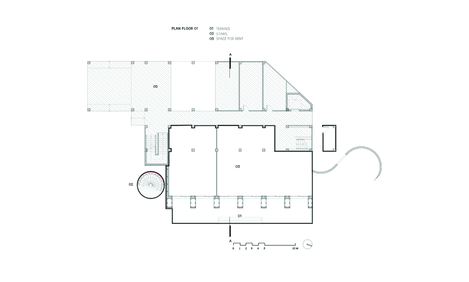
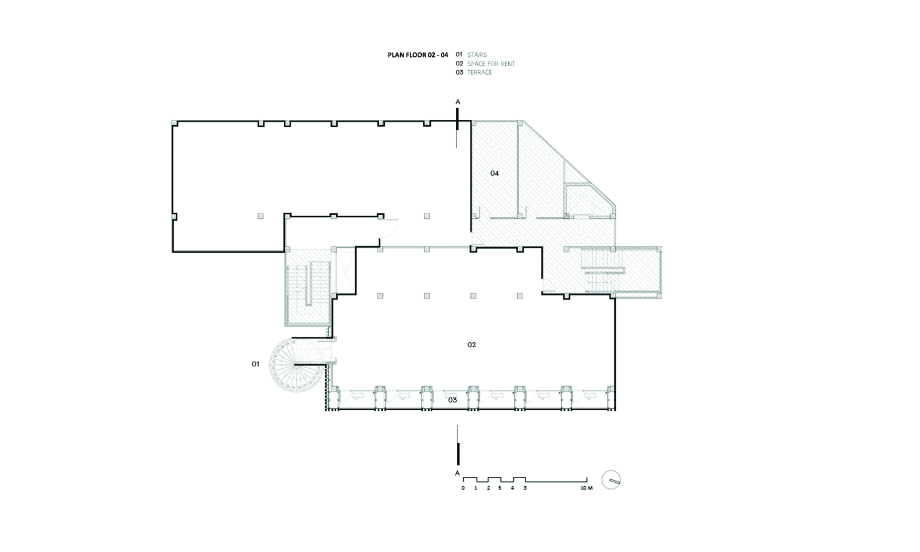
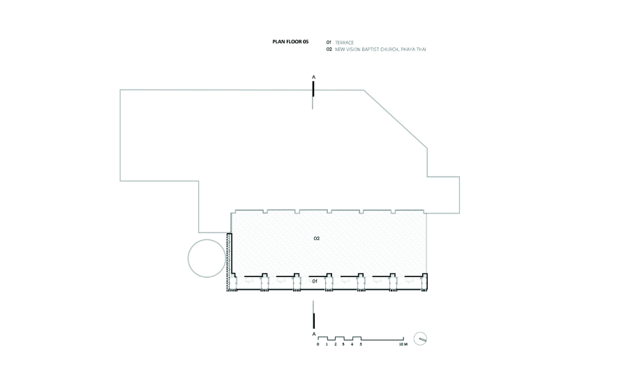
“The Baptist เป็นศูนย์ชุมชนของชาวคริสต์ ที่มารวมตัว พบปะ พูดคุย และทํากิจกรรมร่วมกัน นอกจากนี้ยังเป็นอาคารอเนกประสงค์ ที่มีการใช้งานหลายอย่าง โดยชั้นล่างเป็นร้านขายของสวัสดิการ ร้านขายผัก ร้านอาหารเพื่อสุขภาพ ร้านกาแฟ ส่วนชั้นสองกับชั้นสามจะเป็นโรงเรียนสอนภาษาและคลินิกทําฟัน ชั้นบนสุดเป็นโบสถ์คริสต์ ถึงแม้ตัวอาคารจะตั้งอยู่บริเวณสี่แยกใกล้สถานีรถไฟฟ้าที่เชื่อมต่อโดยตรงกับสนามบินสุวรรณภูมิ แต่ปัญหาก็คือ เดิมทีตัวโครงการไม่หันหน้าเข้าหาถนน ทําให้เวลาคนผ่านไปผ่านมาหรือคนที่อยู่ริมถนนจะไม่ค่อยสังเกตว่าเป็นพื้นที่ที่คนภายนอกสามารถเข้ามาใช้สอยได้ นี่คือประเด็นแรกเลยที่ทําให้มีการปรับปรุงอาคารนี้ขึ้นใหม่”
ความโดดเด่นในการปรับปรุงโครงการแห่งนี้ก็คือ ถึงแม้จะเป็นอาคารของชุมชนศาสนาคริสต์ แต่ทางทีมสถาปนิก PHTAA ก็ตั้งใจหลีกเลี่ยงการใช้สัญลักษณ์ทางศาสนาอย่างชัดเจน เพื่อสร้างภาพลักษณ์ของพื้นที่ให้เปิดกว้างและรองรับชุมชนในวงกว้างได้มากขึ้น
“ในการออกแบบช่วงแรก เราคุยกับเจ้าของโครงการว่า ถึงแม้จะเป็นพื้นที่ของชาวคริสต์ เราก็ไม่อยากให้ตัวอาคารแสดงความเป็นสัญลักษณ์ทางศาสนาอย่างชัดเจน เพราะอาจจะทําให้คนในชุมชมคิดว่าที่นี่เป็นพื้นที่เฉพาะของคริสตศาสนิกชนเท่านั้น จนรู้สึกเกร็งที่จะเข้ามาใช้อาคารแห่งนี้ กล่าวคือ ถ้าเราทําสัญลักษณ์ไม้กางเขนบนฟาซาดของอาคารอาจจะดูชัดเจนเกินไป เราจึงคิดว่าจะทําให้มีความพร่าเลือนสักหน่อย ไม่จําเป็นต้องเป็นสัญลักษณ์ขนาดนั้น ผมก็ลองไปค้นคว้าจากพระคัมภีร์ไบเบิล และพบเหตุการณ์ตอนที่พระเยซูปรากฏกายริมทะเลและพบชาวประมงที่จับปลาไม่ได้ เมื่อพระเยซูช่วยเหลือ พวกเขาจึงจับปลาได้ราวกับปาฏิหารย์ พระเยซูเชิญชวนให้พวกเขาติดตามพระองค์และสัญญาว่าจะทําให้พวกเขาเป็น Fishers of men หรือ “ผู้หาคนดั่งหาปลา” ที่นําพามนุษย์มาสู่พระเจ้า และได้พวกเขาเป็นอัครสาวกกลุ่มแรก ผมคิดว่าเหตุการณ์ตอนนี้เป็นเหมือนการเดินทางที่มีความเชื่อมโยงกันระหว่างกลุ่มคนและชุมชนอย่างน่าสนใจ เราคงไม่ได้เอาภาพเหตุการณ์นี้มาใช้อย่างตรงไปตรงมา แต่จะเอาความรู้สึกและกลิ่นอายของสถานที่หรือบริบทของเรื่องราวนี้มาใช้ ซึ่งก็คือ ทะเล”
ด้วยแรงบันดาลใจจากเรื่องราวของท้องทะเลในพระคัมภีร์ไบเบิล ทีมสถาปนิก PHTAA เลือกการ ปรับปรุงก่อสร้างอาคารแห่งนี้ขึ้นใหม่ด้วยวัสดุมีความเชื่อมโยงกับแรงบันดาลใจอย่างลึกซึ้งอย่าง “แก้ว” อันมีต้นกําเนิดจาก “ทราย” บนชายฝั่งทะเลนั่นเอง


“เวลาทํางานออกแบบ ผมเริ่มต้นด้วยการเข้าไปสํารวจพื้นที่ที่เป็นสถานที่ผลิตวัสดุก่อสร้าง อย่าง โรงงานต่างๆ ในช่วงเวลานั้นผมได้มีโอกาสไปเยี่ยมชมโรงงานผลิตบล็อกแก้ว ที่ให้ความโปร่งแสง แต่ยังช่วยพรางตาแก่อาคาร ซึ่งคุณสมบัติของวัสดุชนิดนี้ทําให้ผมเชื่อมโยงกับความรู้สึกของผิวน้ําทะเลได้ แต่ยังนึกไม่ออกว่าเราจะเอาไปทําอะไร ผมก็เลยขอทางโรงงานเข้าไปชมกระบวนการผลิตบล็อกแก้วว่าเริ่มจากอะไรและใช้วัตถุดิบอะไรบ้าง ผมพบว่ากระบวนการผลิตบล็อกแก้ว คือการใช้ทรายซิลิก้ามาเข้ากระบวนการอบร้อนหล่อออกมาเป็นบล็อกแก้ว ผมยังพบว่า เวลาเราเห็นบล็อกแก้วที่เสร็จสมบูรณ์แล้ว จะมีลักษณะออกมาเป็นบล็อกแก้วเต็มๆ แต่ในความเป็นจริง เวลาผลิต เขาจะผลิตออกมาทีละครึ่ง แล้วนํามาประกบกันและหลอมด้วยความร้อนให้บล็อกแก้วสองส่วนเชื่อมติดกันเป็นชิ้นเดียว ผมเห็นแล้วจึงถามทางโรงงานว่า ถ้าผมขอเอาบล็อกแก้วครึ่งเดียวที่ยังไม่ประกบกันมาใช้ได้ไหม (เหมือนเป็นการหยิบฉวยเอาวัสดุนี้มาใช้ระหว่างกระบวนการผลิตโดยไม่ต้องสร้างกระบวนการผลิต หรือขึ้นแม่พิมพ์บล็อกใหม่) เพราะผมเห็นแล้วรู้สึกว่ามันเบาสบาย และคิดถึงการเปิดช่องทางให้ลมไหลผ่าน เพื่อจะได้ไม่เกิดความร้อนสะสมในอาคาร รวมถึงระบายความร้อนจากคอมเพรสเซอร์ของเครื่องปรับอากาศ พอทางโรงงานแจ้งว่าเป็นไปได้ ผมก็ลองศึกษาการติดตั้งหลากหลายรูปแบบจนพบวิธีที่ใช้ได้ แต่ด้วยความที่ผมคิดว่าเจ้าของโครงการยังไม่มั่นใจว่าจะทําได้จริง ก็เลยลองเอาไปทดลองกับสํานักงานสถาปนิกของเราก่อน ด้วยความที่เรากําลังปรับปรุงสํานักงานของเราใหม่ ผมเลยลองใช้บล็อกแก้วทดลองกับผนังหนึ่งของสํานักงานเรา เพื่อให้เจ้าของโครงการเห็นว่ามันใช้งานได้จริง ซึ่งพอเขาเห็นแล้วก็ตกลงอนุมัติให้ใช้วิธีนี้กับอาคารในที่สุด”
“กระบวนของการติดตั้งในวิธีนี้ เริ่มต้นด้วยการใช้โครงสร้างหลักเป็นเหล็กกล่อง และพับเป็นตัว U เพื่อยึดบล็อกแก้วไว้ในกรอบเหล็ก ทําให้สามารถถอดบล็อกแก้วออกเพื่อเปลี่ยนหรือซ่อมบํารุงได้ง่าย แผงบล็อกแก้วที่ว่านี้ทําหน้าที่เป็นฟาซาดปกคลุมด้านหน้าของอาคาร สร้างภาพของแสงและเงา คล้ายระลอกคลื่นของน้ําทะเล สื่อถึงเหตุการณ์ในพระคัมภีร์ไบเบิล พร้อมทั้งเปิดช่องทางให้อากาศไหลเวียนเข้ามาในอาคารได้เป็นอย่างดี”
“ด้านข้างของตัวอาคาร เรายังออกแบบให้มีบันไดทางเข้า เพราะเจ้าของโครงการต้องการให้ทําบันไดเชื่อมจากทางเข้าด้านนอกขึ้นไปสู่ชั้นสองได้โดยไม่ต้องเข้าไปในตัวคารจากทางเข้าด้านหน้าโดยตรง เพื่อให้คนภายนอก(ที่ไม่ได้เป็นคริสตศาสนิกชน)เข้ามาในพื้นที่ใช้งานอเนกประสงค์ของอาคารได้โดยไม่รู้สึกเกร็งจากการเป็นศูนย์การเรียนรู้ของชาวคริสต์ ทําให้อาคารแห่งนี้เปิดกว้างต่อสาธารณชนได้มากขึ้น”
นอกจากวัสดุหลักอย่างแก้วแล้ว อาคารแห่งนี้ยังมีการใช้วัสดุอีกชนิดที่แตกต่างอย่าง “โซ่” มาทําเป็นฟาซาดของราวบันไดขึ้นอาคารด้านข้าง ที่ให้ความรู้สึกพร่างพรายละเมียดละไมกับองค์ประกอบเสริมของอาคารอีกด้วย


“การใช้โซ่นี้สัมพันธ์จากเหตุการณ์เดียวกันในพระคัมภีร์ไบเบิล เพราะเราได้แรงบันดาลใจมาจาก ความเป็น โซ่ปลายแห ที่เย็บอยู่ปลายแหเพื่อถ่วงให้แหจมลงในน้ําเวลาชาวประมงทอดแหจับปลา เราก็หยิบเอาโซ่ปลายแหมาใช้กับฟาซาดของราวบันไดขึ้นอาคารแห่งนี้โดยตรง”

“พอทําโครงการนี้เสร็จเรียบร้อยแล้ว ทางเจ้าของโครงการรู้สึกชอบมาก เขาบอกเราว่าการปรับปรุง อาคารแห่งนี้ทําให้มีคนเข้ามาในอาคารได้อย่างสบายใจมากขึ้น และเปลี่ยนอาคารศูนย์ชุมชนชาว คริสต์แบบเดิมให้กลายเป็นแลนด์มาร์กในเมืองที่เปิดกว้างและมีความหมายมากยิ่งขึ้น”
Architects: PHTAA
Client: Baptist Student Center
Builder: CoCreate Construction
Area: 500 sqm.
Dates: Completion Date.- August 1, 2025.
Venue / Location: 473 Thanon Si Ayutthaya, Khwaeng Thung Phaya Thai, Ratchathewi,
Bangkok 10400, Thailand
Manufacturers: Chang Kaew Glass Block
Photography: Kukkong Thirathomrongkiat
The Baptist อาคารศูนย์ชุมชนชาวคริสต์ที่ถูกปรับปรุงให้แปลกตา เปิดกว้าง และมีความหมายต่อผู้คน โดย PHTAA
/
ในตอนนี้เราขอเปลี่ยนบรรยากาศจากงานออกแบบสถาปัตยกรรมที่อยู่อาศัย หรือบ้าน มาเป็นงานออกแบบภายในร้านค้ากันบ้าง โดยในคราวนี้เป็นคิวของร้านค้าปลีกสินค้าแฟชั่นแบรนด์ใหม่อย่าง Zanpu ที่หยิบเอาชิ้นส่วนของผ้าเหลือใช้จากกระบวนการตัดเย็บของแบรนด์แฟชั่นจากญี่ปุ่นอย่าง YaccoMaricard ให้กลายเป็นงานแฟชั่นอันยั่งยืนเปี่ยมคุณภาพ
/
ในตอนนี้เราขอนำเสนอผลงานออกแบบบ้านอันโดดเด่นอีกครั้ง ในคราวนี้เป็นบ้านในเมือง ที่มีพื้นที่ขนาดเหมาะสมกับพื้นที่ใช้สอย สัดส่วนพอดีสำหรับการอยู่อาศัยของคุณพ่อ คุณแม่ และสมาชิกตัวน้อย ความพิเศษของบ้านหลังนี้คือการเป็นบ้านของครอบครัวขยาย ที่เชื่อมโยงระหว่างบ้านหลังใหม่ กับบ้านเดิมของคุณปู่ คุณย่า ผู้เป็นบิดามารดาของเจ้าของบ้านหลังใหม่นั่นเอง
/
ในตอนนี้เราขอนำเสนอผลงานออกแบบบ้านอันโดดเด่นอีกครั้ง แต่ที่น่าสนใจก็คือ บ้านหลังนี้ไม่ใช่แค่ บ้านที่โดดเด่นแค่เพียงฟังก์ชันในการอยู่อาศัย หรือมีดีไซน์โดดเด้งเตะตาผู้คนแต่เพียงเท่านั้น แต่ดีไซน์ของบ้านหลังนี้แฝงความหมายอันลึกซึ้งในการเป็นอนุสรณ์สถานของเจ้าของ ดังชื่อของบ้านอย่าง Lucent House ที่เปรียบเสมือนสถานที่ ที่แสงแห่งตัวตน ความรัก ความทรงจำที่มีต่อเจ้าของบ้านยัง คงสาดส่องต่อไป แม้ในวันสุดท้ายที่ทุกคนต้องพบเจอ เพราะ “แสง” ไม่เคยหายไป บ้านแห่งนี้จึงเป็นสัญลักษณ์ของการดำรงอยู่บนเส้นทางที่ไม่สิ้นสุด บ้านหลังนี้เป็นผลงานการออกแบบของบริษัทสถาปนิก CORE cluster บริษัทลูกในเครือ A A D design (Ayutt and Associates design) ผู้เชี่ยวชาญด้านการออกแบบสถาปัตยกรรม การตกแต่ง ภายใน และภูมิสถาปัตยกรรม ด้วยการผสานทุกองค์ประกอบเข้าด้วยกันอย่างไร้รอยต่อ จนกลายเป็น แนวคิดที่สมบูรณ์ ตอบสนองความต้องการด้านการใช้งานของผู้อยู่อาศัยได้อย่างลงตัว ภายใต้ ปรัชญาที่ว่า “สถาปัตยกรรมที่ดีจะนำมาซึ่งความสุขและความพึงพอใจแก่ผู้ที่มีปฏิสัมพันธ์กับพื้นที่” โดย อาร์ต อยุทธ์ มหาโสม หัวเรือใหญ่ของเครือ A A D design
/
ในตอนนี้เราขอนำเสนอผลงานออกแบบสถาปัตยกรรมที่แตกต่างจากในตอนที่ผ่านๆ มา คือเป็นโครงการสถาปัตยกรรมที่เป็นวิลล่าสไตล์โมเดิร์นที่ตั้งอยู่อย่างโดดเด่นท่ามกลางต้นไม้ใบเขียวขจีบนชายหาดริมทะเลของเกาะสมุย แล้ววิลล่าแห่งนี้ก็ไม่ใช่วิลล่าพักตากอากาศตามปกติธรรมดา หากแต่เป็นสถานที่จัดงานแต่งงานริมทะเลที่มีชื่อว่า Vows Villa นั่นเอง
/
เราเคยนำเสนอ 3 โปรเจกต์ออกแบบของ Jenchieh Hung + Kulthida Songkittipakdee / HAS design and research ที่สร้างประสบการณ์ใหม่ให้กับงานรีเทลด้วยการผสานรูปแบบพิพิธภัณฑ์เข้ากับความเป็นโชว์รูมเฟอร์นิเจอร์ชั้นนำระดับโลก ที่ตั้งอยู่ในเมืองเหอเฝย์ ประเทศจีน ครั้งนี้เรายังมีอีก 2 โปรเจกต์ซึ่งตั้งอยู่ภายนอกอาคาร ประกอบด้วย Simple Art Museum และ Simple Design Archive โดยเรื่องของบริบทเชิงพื้นที่ ไม่ว่าจะเป็นที่สภาพแวดล้อม ประวัติศาสตร์ วัฒนธรรม และสังคม ยังคงนำมาเป็นส่วนประกอบในแนวคิดการออกแบบที่ถ่ายทอดผ่านภาษาทางสถาปัตยกรรมในแบบ HAS design and research อยู่
/
บ้านหลังแรกที่สร้างขึ้นเองของคุณออมมี่ และคุณแบงค์ -ปรีดากร เมรเกรียงชัย Co-Founder แห่งแบรนด์ Gentle RAM บ้าน ที่ตอบโจทย์รสนิยมของทั้งสองที่หลงใหลในความ Timeless และการอยู่อาศัยที่อยู่สบาย เรียบง่าย พร้อมจัดระเบียบชีวิตในบ้านได้อย่างลงตัว บ้านที่ทุกพื้นที่ และทุกฟังก์ชั่นที่ทาง THE OTHERS ผู้ออกแบบได้ขบคิดมาอย่างพิถีพิถันไม่ต่างกับเสื้อผ้าที่เทรลเลอร์เมดให้พอดีกับเจ้าของบ้าน
We use cookies, localStorage and other technologies (collectively, "cookies") to recognise your browser or device, learn more about your interests, and provide you with essential features and services and for additional purposes. ( see details )






















